Cấu Tạo Máy Hút Bụi Công Nghiệp
18/05/2024
Máy hút bụi công nghiệp được chế tạo đặc biệt. Guồng cánh có kết cấu chống bám dính và chịu mài mòn. Vải lọc bụi được sử dụng là loại Polyester chuyên dụng. Có thể di chuyển linh hoạt nhờ hệ thống bàn đẩy và bánh xe. Thiết bị này là giải pháp giúp các doanh nghiệp tiết kiệm nhiều chi phí thuê nhân công, bảo đảm được môi trường nhà xưởng luôn sạch sẽ, trong lành bảo vệ sức khỏe của mọi công nhân. Nếu có thắc mắc hãy liên hệ với chúng tôi qua số
.jpg)
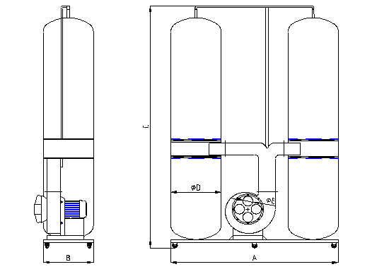
Cấu tạo, nguyên lý hoạt động.
Cấu tạo.
-Motor (động cơ): Có nhiệm vụ chuyển hóa điện năng thành động năng để làm quay cánh quạt, tạo ra luồng gió giúp các bộ phận khác hoạt động.
-Quạt hút bụi túi vải: Được gắn với trục động cơ, khi động cơ quay làm quạt quay và tạo ra luồng gió hút bụi bẩn bên ngoài vào bên trong túi chứa bụi.
-Túi vải lọc bụi công nghiệp: Là những cái túi vải lớn, được nối với ống hút làm nhiệm vụ chứa bụi bẩn khi máy hút vào. Trong đó, phần túi phía bên trong sẽ mỏng hơn giúp thoát khí dễ dàng, còn phần túi vải ở phía dưới thì sẽ dày hơn để đảm bảo độ chắc chắn khi chứa bụi.
-Ống hút: Có đường kính lớn thực hiện việc dẫn chuyền bụi bẩn vào bên trong máy một cách nhanh chóng, ống hút có thể hút được nhiều loại rác với các kích cỡ đa dạng.
-Ống dẫn khí: Bụi bẩn ở bên ngoài khi được hút vào bên trong máy sẽ theo ống hút đi đến túi vải chứa bụi.
-Khung đỡ: Bộ phận này được cấu thành từ chất liệu cao cấp và phủ sơn tĩnh điện để giúp túi vải chứa bụi đứng thẳng.
-Bánh xe: Được gắn ở trên khung đỡ giúp cho máy di chuyển một cách dễ dàng đến những khu vực khác nhau.
.jpg)
Nguyên lý hoạt động.
-khi luồng không khí di chuyển vào túi lọc bụi, các hạt bụi lớn sẽ rơi trực tiếp xuống phễu, còn các hạt nhỏ hơn sẽ đi qua các buồng của túi vải để đẩy luồng không khí sạch ra và giữ lại các tạp chất như mạt sắt, mùn cưa,...
-Để giũ bụi khỏi bề mặt trong túi vải, thiết bị cũng được thiết kế hệ thống giũ bụi tiện lợi, dễ sử dụng.
-Tùy thuộc vào lượng bụi phát sinh, tính chất, kích thước bụi mà chúng ta có thể sử dụng máy hút bụi trong nhà xưởng túi vải công suất lớn có một hoặc nhiều bộ túi lọc để đảm bảo hiệu quả sử dụng tối ưu so với phương pháp vệ sinh truyền thống.
Ưu điểm.
-Quạt hút được lắp đặt trong máy hút bụi được thiết kế đem lại khả năng thu hồi bụi cao. Phần guồng cánh quạt còn chịu được mài mòn và chống bám dính rất tốt.
-Sử dụng máy lọc bụi công nghiệp 2 túi vải là biện pháp tối ưu đối với các loại bụi cần thu hồi tái sử dụng.
-Đem tới năng suất, hiệu suất lọc bụi cao đạt 96 – 99%.
-Máy hút bụi có kết quả làm sạch cao, có thể sấy khô bụi đối với các trường hợp không khí ẩm và chống sự kết dính của bụi.
-Có giá thành rẻ, tính di động cơ, phù hợp với cả những xưởng sản xuất nhỏ.
-Có độ bền và tuổi thọ lâu dài.
Ứng dụng.
-Hút bụi kim loại
-Hút bụi dệt, bụi nhôm, bụi gia công cơ khí, bụi gốm sứ
-Hút bụi tại các nhà máy, xưởng sản xuất thức ăn chăn nuôi
-Hút bụi phát sinh khi đóng gói sản phẩm
-Hút bụi cho các ngành khác có nhu cầu hút bụi có lưu lượng nhỏ từ máy gia công hay bụi phân tán dưới sàn,..
.png)
Bán máy hút bụi công nghiệp giá tốt.
Cơ Điện Lạnh Eriko, nhà thầu cung cấp các loại máy hút Bụi túi vải, quạt thông gió công nghiệp lắp đặt trong các hệ thống hút lọc bụi. Khi mua các sản phẩm tại của chúng tôi, quý khách hàng được đảm bảo:
► Chế Độ Bảo Hành:
-Thời gian :12 tháng
► Phương thức vận chuyển:
-Miễn phí vận chuyển trong vòng 20 km nội thành HÀ NỘI
► Ưu đãi:
-Công ty sẽ ưu đãi chiết khấu trên giá bán cho các cửa hàng, đại lý và đối tác lấy số lượng nhiều.
Cách Thức Liên Hệ Đặt Hàng.
-Qúy khách Hàng chuyển khoản vào tk cty, công ty sẽ giao hàng tận nơi cho quý khách hàng.
-Qúy Khách Hàng đến tận văn phòng cty lấy hàng.
.jpg)
Mọi chi tiết thắc mắc về sản phẩm hoặc tư vấn báo giá máy hút bụi công nghiệp vui lòng liên hệ tới:
CÔNG TY TNHH CƠ ĐIỆN LẠNH ERIKO
HOTLINE GÓP Ý, KHIẾU NẠI: 0988628586 | Email: erikovn.sg@gmail.com
Trang chủ